网站指南
商家中心
神卡大全
搜索
登录
注册
有没有网络综合布线的大佬
苏哥拉弟
(
UID:
360)
特别鸣谢
2023-12-20
[复制链接]
帖子链接已复制到剪贴板
收藏
帖子已经有人评论啦,不支持删除!
1345
4
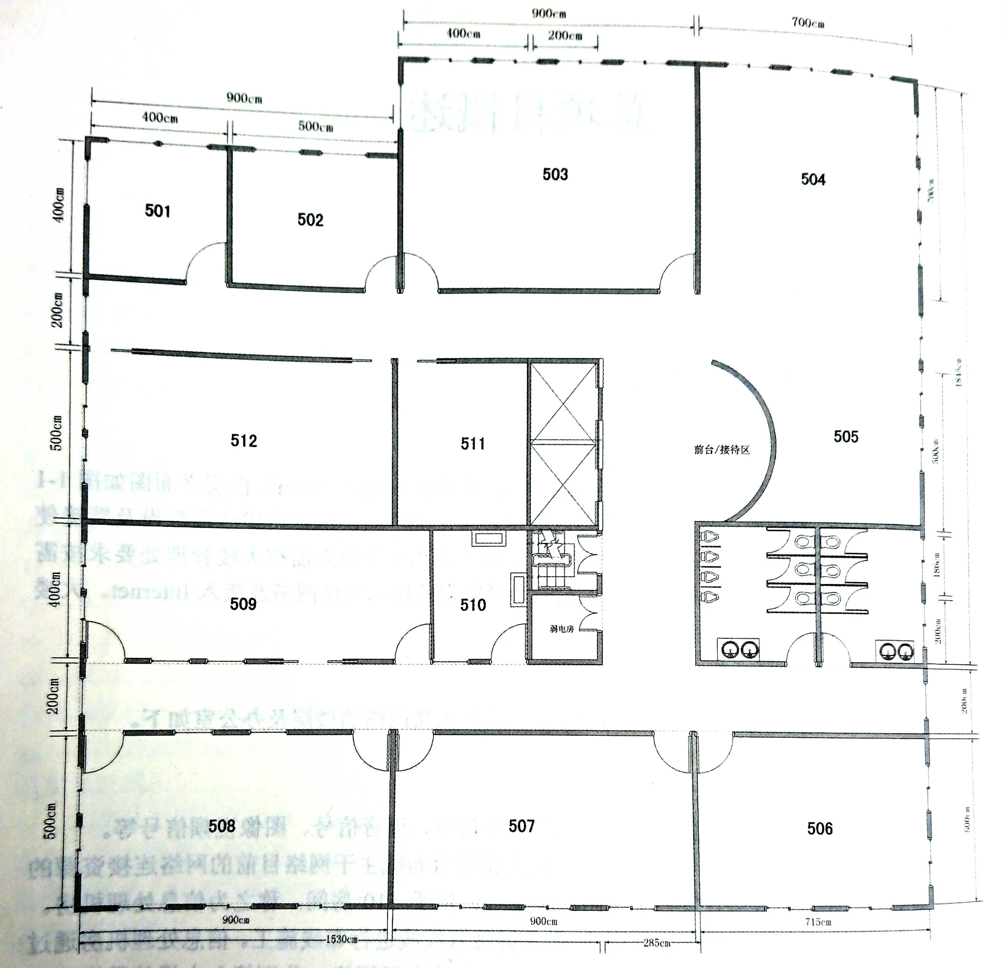
怎么根据这两张图写一份综合布线方案设计报告
还需要画系统结构图,拓扑图
RZ.SB
已有评论
(
4
)
只看楼主
倒序
提示:
您必须
登录
才能查看此内容。
创建新帖
苏哥拉弟
UID:360
特别鸣谢
75
主题数
423
评论数
0
推荐数
Tips:
自助推广
(
点击空位自助购买
或
TG联系
)